Direct naar de inhoud
  • 1850-1940
  • Wederopbouw
  • Na '65
  • Complexen
  • Personen & organisaties
  • Thema's
  • Bouwstijlen
  • Zoeken
  • - - - - - - -
  • Monumenten
  • - - - - - - -
  • Quizzen
  • - - - - - - -
  • Over, bronnen, copyright etc.
  • Doneren
  • Privacyverklaring
  • start
  • Amsterdam op de kaart

  • zoeken
  • filters
  • tips
  • Kaartlagen

    Basis

    Historische kaarten

    Kaarten

    Uitbreidingplannen

    Afbeelding uit: december 2014.
    Afbeelding uit: 1937.
    Afbeelding uit: maart 2026.
    Afbeelding uit: december 1979. Rechts het tweelingpand aan de Weesperzijde. Op de achtergrond gebouw Leeuwenburg van de Rijkspostspaarbank.
Bron afbeelding: Stadsarchief.

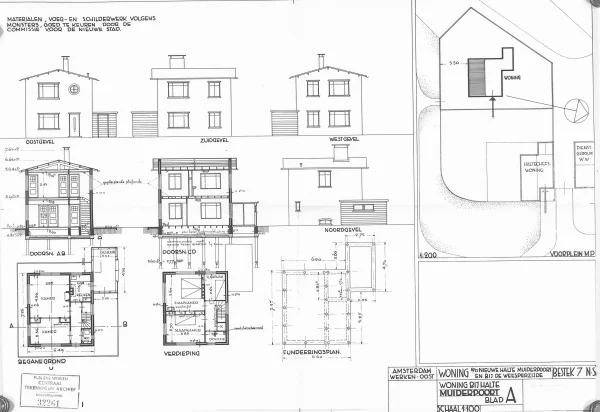
    Dienstwoning bij NS-station Muiderpoort. Op de begane grond waren twee kamers en-suite, de keuken, de wc en een aangebouwde schuur. Op de eerste verdieping kwamen drie slaapkamers en een badkamer.

    Eerste bewoner was Gerrit Kieft, geboren in Coevorden in 1881, en volgens het bevolkingsregister ploegbaas bij de NS. Hij woonde hier met zijn gezin; eerder woonden ze in een dienstwoning aan de Piet Heinkade bij de Oosterdoksdoorgang. Kieft vertrok in 1942; wellicht vanwege pensionering, of omdat hij werd overgeplaatst. Hier kwamen toen Evert Jan ter Maten (1897-1948) en zijn vrouw te wonen. Ook Ter Maten was een spoorman.

    Na het overlijden van Ter Maten werd de woning betrokken door Adrianus Mathijssen, ook een ploegbaas bij NS. Na diens pensionering (en toen nog gedwongen vertrek uit de dienstwoning): Jan Besse, eveneens ploegbaas bij het spoor. Na de dood van Besse in 1962 bleef zijn weduwe hier tot 1978 wonen.

    Een identieke ploegbaaswoning werd gelijktijdig gebouwd even ten zuiden van het Amstelstation, ook daar tegen de spoordijk aan. Het adres was Weesperzijde 207. Dat huis werd in de jaren 1990 afgebroken.

    Oorspronkelijk adres, tot 1939: Domselaerstraat 18.

    Dienstwoning 2. Oosterspoorplein 6

    Datering:
    1936-1938
    Ontwerp:
    Schelling, H.G.J.
    Bouwstijl:
    Nieuwe Zakelijkheid
    Oorsponkelijke functie:
    Dienstwoning
    Status:
    Gemeentelijk monument
    Bronnen & links:
    • Gemeentelijk Monumenten Project
    • SAA: archief Woningkaarten, archief bevolkingsregister.
    Laatste wijziging:
    april 2026

    Er zijn 2 afbeeldingen in de beeldbank van het Stadsarchief die gerelateerd zijn aan dit adres.

    Toon afbeeldingen Stadsarchief (2)